Yığılca Köprüsü

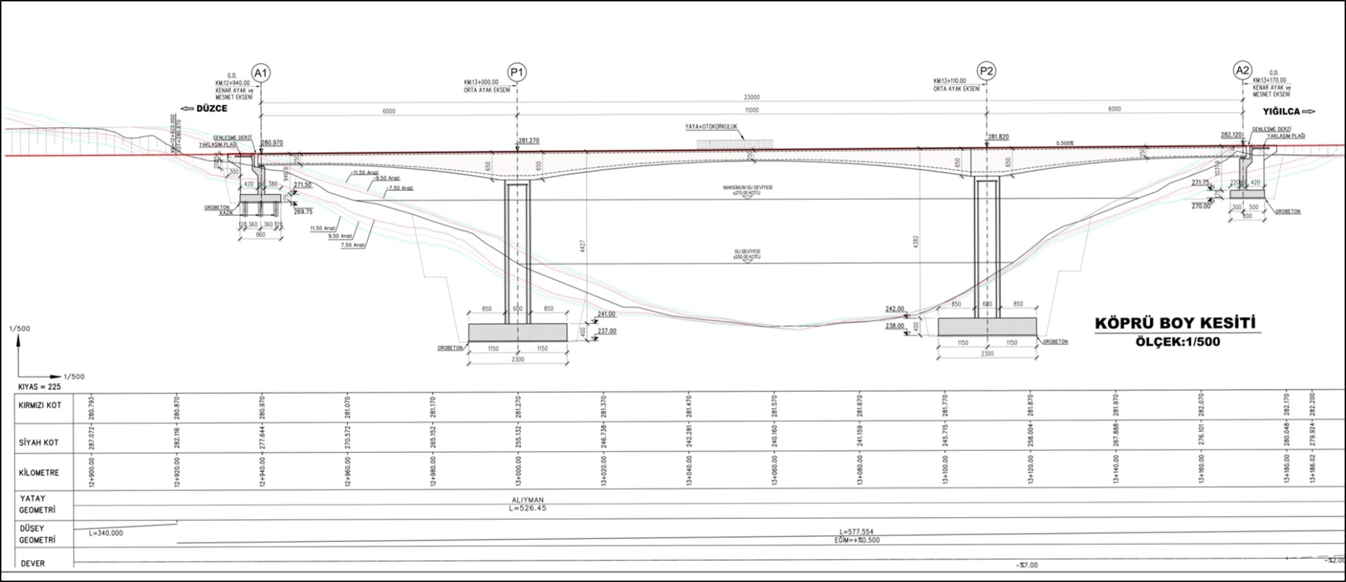
Yığılca Köprüsü; Düzce – Akçakoca ayrımı, Yığılca yolu üzerinde Km:12+940 ile km:13+170 arasında, Hasanlar baraj gölünün üzerinde yer alacaktır. Yerinde dökme kutu kesitli betonarme üstyapı dengeli konsol metodu ile yapılacaktır.

Proje Adı: Yığılca Köprüsü
Şehir/Ülke: Düzce
Toplam uzunluk : 230 m
Köprü genişliği : 13.0 m
Maksimum açıklık : 110.00 m
Hizmetler : Köprü Tasarımı