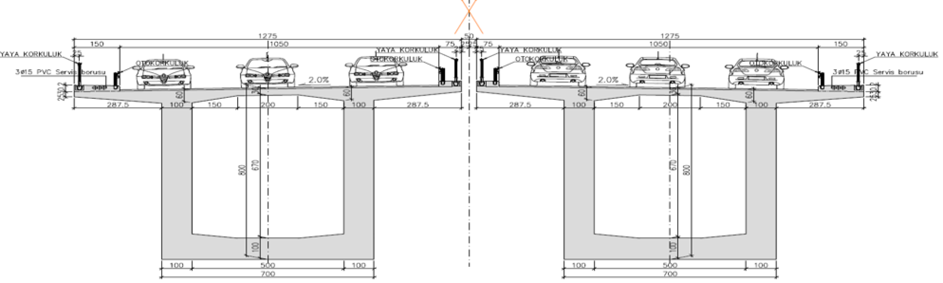
Susuz Köprüsü: Köprü Kars ilinde, Susuz çevre yolunda Km. 28+365 ile Km. 28+995 arasında yer almaktadır.  Susuz köprüsü ana açıklığı 150.0 m ye sahip olan kutu kesitli yerinde dökme bir sistem olarak tasarlanmıştır ve dengeli konsol yöntemi ile imal edilecektir.

Proje Adı: Susuz Köprüsü
Şehir/Ülke: Kars
Hizmetler : Proje Danışmanlığı