Anamur – Kaledran Arası 7 Özel Köprü

Mersin – 13. Bl. Hd. Devlet Yolu (Anamur – Kaledran Arası) KM: 231+127.50 – 237+740.00 Arası (1. Kısım) 4 adet Viyadük Projesi ile KM:239+740.00 – 247+640 Arası (2. Kısım) 3 Adet Viyadük Projesi Yapılması“ İşi Bağımsız Proje Danışmanlığı:

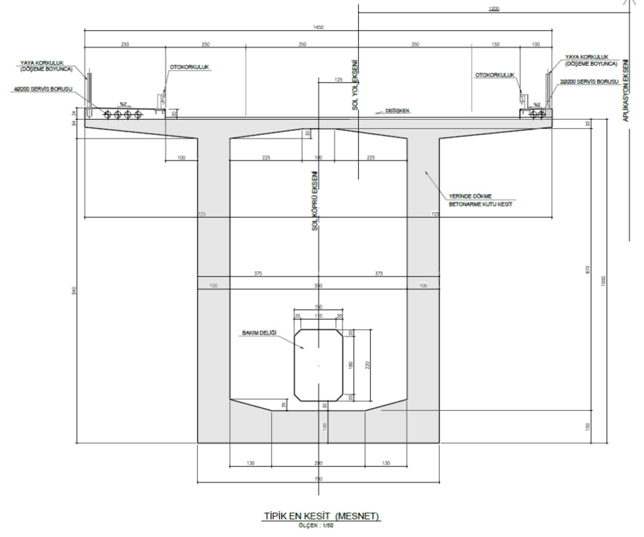
Mersin-Anamur bölgesinde yapılacak 7 farklı özel köprü projesinin bağımsız kontrollüğünün yapılması işidir. Bu 7 köprüden uzunluğu en düşük olan 105 metre, en yüksek olan ise 870 metre uzunluğundadır. Köprülerin 2 adedi dengeli konsol metodu ile imal edilecek yerinde dökme kutu kesitli bir sistemle yapılacaktır.

Proje Adı: Anamur – Kaledran Arası 7 Özel Köprü
Şehir/Ülke: Mersin
Hizmetler : Proje Danışmanlığı